burkhard | architekten
b | a
Aktuelles
Über uns
Projekte
Wohnen
Weinbau
Öffentlich
Gewerbe
Archiv
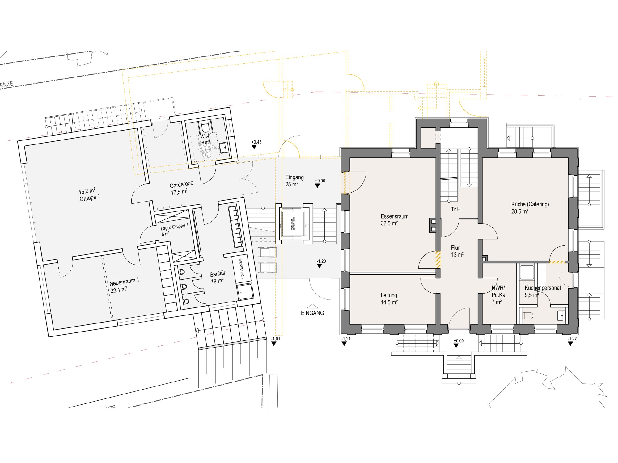
Umnutzung und Neubau für 2-gruppige Kita in Weyher
Machbarkeitsstudie
Planung | 2023
Impressum + Datenschutz
Kontakt
By Getpace